В 2025 году требования к проектам производства работ (ППР) кранами становятся еще более строгими, отражая стремление к повышению безопасности, эффективности и экологичности строительных процессов.
ППР – это не просто формальный документ, а подробный план, определяющий порядок выполнения работ с использованием грузоподъемных механизмов, минимизирующий риски и обеспечивающий бесперебойное выполнение задач. Рассмотрим план производства работ кранов подробнее.
Требования к ППР кранами в 2025 году
Современный ППР кранами должен соответствовать ряду обязательных критериев, обеспечивающих его полноту и практическую применимость:
- Документ должен базироваться на действующих строительных нормах, правилах безопасности и технических регламентах, включая последние изменения и дополнения, вступившие в силу к 2025 году.
- ППР должен содержать исчерпывающую информацию о каждом этапе работ. Это последовательность операций, временные рамки, ответственные лица и необходимые ресурсы.
- Особое внимание уделяется идентификации потенциальных опасностей, связанных с работой кранов, и разработке конкретных мер по их предотвращению или минимизации.
- Включение в ППР всей необходимой технической документации, такой как паспорта кранов, сертификаты на грузозахватные приспособления, схемы строповки и так далее, является обязательным.
Помимо этого, ППР должен пройти процедуру согласования с соответствующими надзорными органами и утверждения руководством организации, выполняющей работы.
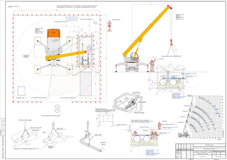
Состав ППР кранами
Структура ППР кранами в 2025 году остается логичной и последовательной, обеспечивая удобство использования и полноту информации:
- Общие сведения содержат наименование объекта, заказчика, исполнителя, сроки выполнения работ, перечень используемых кранов и их основные характеристики.
- Описание объекта и условий производства работ содержит информацию о месте проведения работ, особенностях строительной площадки, наличии инженерных коммуникаций, метеорологических условиях и других факторах, влияющих на безопасность.
- Технологическая часть подробно описывает последовательность выполнения работ, методы подъема и перемещения грузов, схемы строповки, требования к грузозахватным приспособлениям.
- Организационная часть определяет распределение обязанностей между участниками процесса, график производства работ, порядок контроля и надзора.
- В мероприятия по охране труда и промышленной безопасности входят инструкции по безопасному ведению работ, меры по предупреждению аварий и несчастных случаев, порядок действий в экстренных ситуациях.
- Графическая часть содержит схемы расположения кранов на площадке, траектории их движения, зоны работы, а также схемы строповки грузов.
В условиях постоянно растущих требований к безопасности и эффективности строительных работ, ППР кранами приобретает особую значимость. Тщательно разработанный и утвержденный проект производства работ является залогом успешного и безаварийного выполнения строительных задач, минимизации рисков для персонала и окружающей среды, а также соблюдения всех нормативных требований!












Оставить ответ
Смотреть комментарии